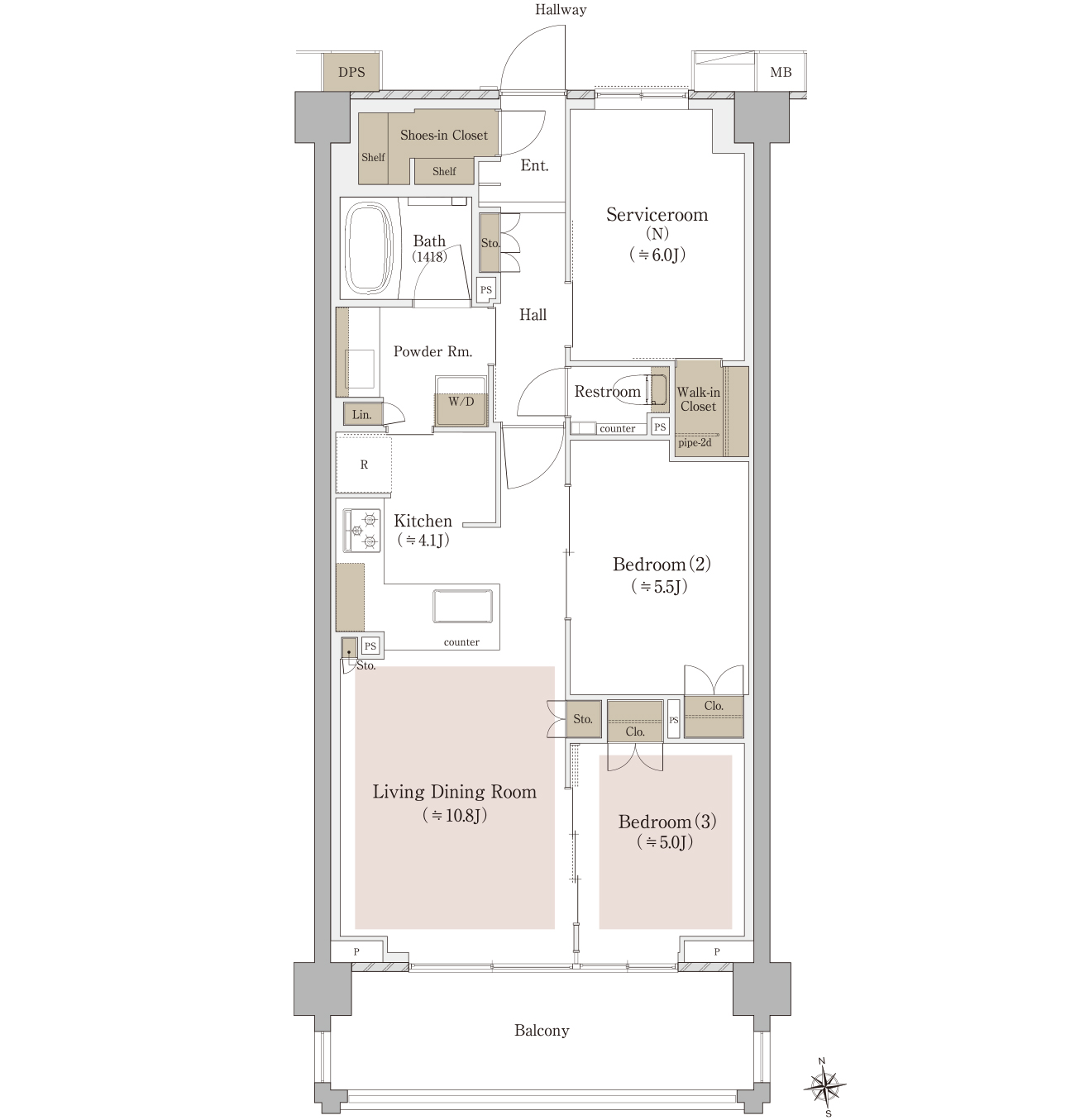
PLAN間取り
B3
71.40㎡
2LDK+S+SIC+WIC
専有防災備蓄倉庫面積/0.41㎡
総専有面積/71.81㎡
バルコニー面積/10.80㎡
快適な家事動線プラン
住まいの随所に収納が充実。
水まわり直結の快適な家事動線プラン。
床暖房
収納
S:サービスルーム(納戸) SIC:シューズインクローゼット
WIC:ウォークインクローゼット
-
心地よい南向きに2居室レイアウト。
引き戸を開けば2部屋続きの広々とした空間に。 -
キッチンとパウダールームが直結で行き来できる、
快適な家事動線。 -
ワークトップが広く使い勝手のよい
L型対面カウンターキッチン。 -
シューズインクローゼットや
ウォークインクローゼットなど収納多彩。
※掲載の間取りは計画段階のもので今後変更になる場合がございます。 ※掲載の情報は2023年12月現在のもので今後変更になる場合がございます。

